PROPERTY SUMMARY
Property Talk
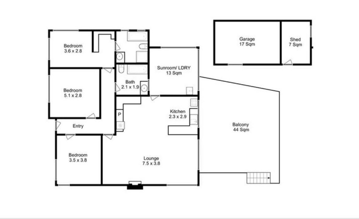
Perfectly positioned in a tightly held pocket of Geilston Bay, 1 Greenacres Road is a beautifully kept three bedroom, two bathroom home that blends comfort, space and lifestyle with ease. Set in an established street on Hobart’s Eastern Shore, it places everyday conveniences at your fingertips while offering a calm, private retreat to come home to.
Inside, a light-filled layout welcomes you with an open living and dining area that feels instantly relaxing. The adjoining sunroom adds genuine flexibility – think home office, playroom, hobby space or a quiet reading nook and invites year-round enjoyment. A well-presented kitchen anchors the living area with quality appliances and excellent everyday functionality, while the practical laundry sits nearby for day-to-day efficiency.
Accommodation comprises three good sized bedrooms supported by two bathrooms, delivering an easy, family-friendly arrangement that also suits professionals, downsizers or investors seeking low-maintenance lifestyles. The interiors have been carefully maintained, presenting an inviting neutral canvas with scope to personalise over time if desired.
Entertaining is effortless: the living area flows to a large deck that’s perfect for weekend gatherings, alfresco dinners and relaxed evenings with friends. Established, thoughtfully landscaped gardens frame the home and have been designed to be attractive yet low-maintenance, so you can spend more time enjoying the lifestyle and less time on upkeep. A single garage adds everyday convenience with secure parking and storage for tools, bikes or weekend gear. The property situated on a corner block has the added convenience of dual access to park boats or trailers at the rear.
The location is a standout. From here you’re close to quality schools, local shopping and services, public transport, parks and waterfront walking tracks, everything that makes Geilston Bay so sought-after. Hobart’s CBD is just a short drive away, keeping the city within easy reach for work and play. With broad buyer appeal and a lifestyle address to match, opportunities like this are increasingly hard to find.
Homes of this calibre are rarely available for long especially in this booming market. Contact Nat today for further information or to arrange your private inspection.
Thinking of selling your property? Contact Natalie Downton for a no-obligation, free assessment. Recognised as the Number 1 Agent in Australia on three occasions and with over 17 years of experience, Natalie is one of Tasmania’s most accomplished and trusted real estate professionals. When it comes to selling your home, why settle for anyone else? Let Natalie’s expertise and proven track record deliver exceptional results for you.















